John Wieland Floor Plans

John Wieland Homes And Neighborhoods How To Plan John Wieland Fort Mill Sc

John Wieland Homes And Neighborhoods How To Plan John Wieland Fort Mill Sc

John Wieland Homes And Neighborhoods John Wieland Home New Homes

John Wieland Homes And Neighborhoods John Wieland Home New Homes

A Family Room And Keeping Room Flank The Kitchen The Marion Model By John Wieland Homes Neighborhoods 5 Bedrooms Keeping Room Happy New Home Story Planning

A Family Room And Keeping Room Flank The Kitchen The Marion Model By John Wieland Homes Neighborhoods 5 Bedrooms Keeping Room Happy New Home Story Planning

Another Great Floor Plan Mayer By John Wieland Homes At Olmsted Floor Plans Building A House My Dream Home

Another Great Floor Plan Mayer By John Wieland Homes At Olmsted Floor Plans Building A House My Dream Home

St Marlo By John Wieland Homes At The Enclave At Jett Ferry John Wieland Ashley Home Enclave

St Marlo By John Wieland Homes At The Enclave At Jett Ferry John Wieland Ashley Home Enclave

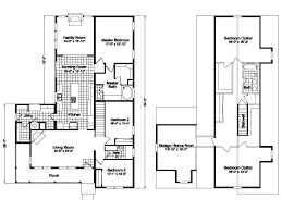
Home Detail House Floor Plans Floor Plans How To Plan

Home Detail House Floor Plans Floor Plans How To Plan

Home Detail House Floor Plans Floor Plans How To Plan

This view on new homesource shows all the john wieland homes plans and inventory homes across atlanta.

John wieland floor plans. Asbestos floor tiles ideas plans john robinson decor. John wieland homes floor plans gurus floor from john wieland homes floor plans. John wieland homes floor plans welcome in order to my personal blog within this time we ll explain to you regarding john wieland homes floor plans and from now on this is the first photograph.

Wallace in alpharetta ga at braeden jw. Wallace in alpharetta ga at braeden jw. In atlanta you will find theses homes with pricing and inventory updated daily.

Donnelly in charleston. Mercer dock lot in mt pleasant sc at dunes west golf and. Maddox in waxhaw nc at gates ansley jw.

It ll draw in others too if they visit your house. Honda accord tourer 2003 car review honest john. Floor plans are the property of pultegroup inc.

This view on new homesource shows all the john wieland homes plans and inventory homes across charleston. Find your new home by jw collection built by the john wieland team new homes and townhomes by the jw collection are ideally located in many of atlanta s best neighborhoods and most sought after destinations. Follow john wieland neighborhoods and get notified about openings.

15 new john wieland homes floor plans oxcarbazepin website. John wieland homes floor plans flisol home. And its affiliates and are protected by u s.

John Wieland Homes And Neighborhoods With Images Floor Plans How To Plan The Neighbourhood

John Wieland Homes And Neighborhoods With Images Floor Plans How To Plan The Neighbourhood

John Wieland Homes And Neighborhoods John Wieland Heritage Collection New Homes

John Wieland Homes And Neighborhoods John Wieland Heritage Collection New Homes

The Manor Collection The Signature Portfolio John Wieland Homes And Neighborhoods John Wieland The Neighbourhood Home

The Manor Collection The Signature Portfolio John Wieland Homes And Neighborhoods John Wieland The Neighbourhood Home

John Wieland Homes And Neighborhoods John Wieland Alstead Home

John Wieland Homes And Neighborhoods John Wieland Alstead Home

John Wieland Homes And Neighborhoods John Wieland Alstead Home

John Wieland Homes And Neighborhoods John Wieland Alstead Home

Image Result For John Wieland L Shape Floor Plan Floor Plans Modular Floor Plans House Floor Plans

Image Result For John Wieland L Shape Floor Plan Floor Plans Modular Floor Plans House Floor Plans

Perfect John Wieland Amherst Floor Plan And Review In 2020 Floor Plans How To Plan Flooring

Perfect John Wieland Amherst Floor Plan And Review In 2020 Floor Plans How To Plan Flooring

John Wieland Homes And Neighborhoods With Images

John Wieland Homes And Neighborhoods With Images

John Wieland Homes And Neighborhoods John Wieland New Homes Heritage Collection

John Wieland Homes And Neighborhoods John Wieland New Homes Heritage Collection

John Wieland Homes And Neighborhoods Home House Styles The Neighbourhood

John Wieland Homes And Neighborhoods Home House Styles The Neighbourhood

Windsor By John Wieland Homes In Atlanta Georgia Kitchen Home Kim S Kitchen

Windsor By John Wieland Homes In Atlanta Georgia Kitchen Home Kim S Kitchen

John Wieland Homes And Neighborhoods American Farmhouse Floor Plans Big Front Porches

John Wieland Homes And Neighborhoods American Farmhouse Floor Plans Big Front Porches

The Brookhaven Designer Model By John Wieland Homes And Neighborhoods Home Luxury Homes New Homes For Sale

The Brookhaven Designer Model By John Wieland Homes And Neighborhoods Home Luxury Homes New Homes For Sale

John Wieland Homes And Neighborhoods Home John Wieland New Homes

John Wieland Homes And Neighborhoods Home John Wieland New Homes

Source : pinterest.com