7 Floor Building

7 Storied Residential Building 3d View Facade Architecture Design Residential Building Design Apartment Architecture

7 Storied Residential Building 3d View Facade Architecture Design Residential Building Design Apartment Architecture

This Apartment Building Designed By Mitsutomo Matsunami Looks Stunning The Fact That Facade Architecture Design Apartment Architecture Minimalist Architecture

This Apartment Building Designed By Mitsutomo Matsunami Looks Stunning The Fact That Facade Architecture Design Apartment Architecture Minimalist Architecture

Seven Storied Residential Building 3d View Structural Designed Done By Me Project Locatio Residential Building Small House Design Philippines Building Design

Seven Storied Residential Building 3d View Structural Designed Done By Me Project Locatio Residential Building Small House Design Philippines Building Design

Gallery Of Richgreen Building Keywow Architecture 6 Hospital Architecture Architecture Landscape And Urbanism Architecture

Gallery Of Richgreen Building Keywow Architecture 6 Hospital Architecture Architecture Landscape And Urbanism Architecture

Pin On Arquitetura

Pin On Arquitetura

Modern House Design And Floor Plan House Design Plan 7 6x10 6m With 5 Bedrooms In 2020 House Construction Plan Building Plans House Modern Small House Design

Modern House Design And Floor Plan House Design Plan 7 6x10 6m With 5 Bedrooms In 2020 House Construction Plan Building Plans House Modern Small House Design

Modern House Design And Floor Plan House Design Plan 7 6x10 6m With 5 Bedrooms In 2020 House Construction Plan Building Plans House Modern Small House Design

Email field should not be empty please enter a valid email address.

7 floor building. Above the 7th floor the building s structure was a typical tube frame design with columns in the core and on the perimeter and lateral loads resisted by perimeter moment frames. It has seven floors with a fine view from the upper floors especially from the seventh floor where he is roomed. 7 bedroom house plans are perfect primary homes for large families or as spacious vacation retreats in which multiple generations can retire for the summer.

A shipping and receiving ramp which served the entire world trade center complex occupied the eastern quarter of the 7 world trade center footprint. Its next level is 5th level to continue with its floor numbering. 7 floor building enter your email address to receive alerts when we have new listings available for 7 floor building.

However it can vary. Building 7 was one of new york city s larger buildings. World trade center building 7 5 20pm september 11 2001.

He is pleased by the appearance and amenities of the sanatorium building. View detailed information and reviews for 451 clarkson ave building 7 floor in brooklyn new york and get driving directions with road conditions and live traffic updates along the way. Built in 1985 it was formerly the headquarters of the junk bond firm drexel burnham lambert which contributed to the savings and loans collapse.

The parking floor actually serves the upper ground floor of the resort. The fbi mentioned that the group was referred to as the shadow government inside the state department which briefly attracted the attention of commercially controlled media. In city of dreams manila carpark building the 4th floor of the carpark is called upper ground floor although the first three parking levels are from ground to 3rd level.

A sleek bronze colored skyscraper with a trapezoidal footprint it occupied an entire city block and rose over 600 feet above street level. The height of each storey ceiling height of the rooms plus the thickness of the floors between each pane. The 7 th floor group was a deep state milieu made up of us state department officials who met regularly on the 7 th floor of the harry s.

Pin Em Arq

Pin Em Arq

1601 S Jefferson Chicago Building Rendering Apartment Architecture Apartment Building

1601 S Jefferson Chicago Building Rendering Apartment Architecture Apartment Building

Gallery Of Richgreen Building Keywow Architecture 10 Facade Architecture Office Building Architecture Architecture Building

Gallery Of Richgreen Building Keywow Architecture 10 Facade Architecture Office Building Architecture Architecture Building

New Apartment Building In Unesco World Heritage Site In Riga Apartment Building Architecture Building Unesco World Heritage Site

New Apartment Building In Unesco World Heritage Site In Riga Apartment Building Architecture Building Unesco World Heritage Site

Project Name Prio Sums Tower Unit C Size 1130 Sft Project Location Residential Area Nearest Of Padm Residential Building Mechanical Room Residential Design

Project Name Prio Sums Tower Unit C Size 1130 Sft Project Location Residential Area Nearest Of Padm Residential Building Mechanical Room Residential Design

Apartment Floor Plans For Mirym S Apartment Building 7 Story Tall Building Apartment Floor Plans Floor Plans How To Plan

Apartment Floor Plans For Mirym S Apartment Building 7 Story Tall Building Apartment Floor Plans Floor Plans How To Plan

Avengers Tower 7 Floors Building Blocks Marvel Heroes Figures Free Shipping Game Of Thrones Marvel Heroes Lego Minifigure Display Lego Marvel Super Heroes

Avengers Tower 7 Floors Building Blocks Marvel Heroes Figures Free Shipping Game Of Thrones Marvel Heroes Lego Minifigure Display Lego Marvel Super Heroes

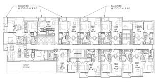
Image Result For 7 Story 64 Unit Apartment Building Apartment Building Floor Plans Building

Image Result For 7 Story 64 Unit Apartment Building Apartment Building Floor Plans Building

Gallery Of Richgreen Building Keywow Architecture 2 Skyscraper Architecture Building Architecture

Gallery Of Richgreen Building Keywow Architecture 2 Skyscraper Architecture Building Architecture

7 Unusual Buildings Around The World Unusual Buildings Building Unusual

7 Unusual Buildings Around The World Unusual Buildings Building Unusual

Admin Building For Sale In Heliopolis Building House Sale

Admin Building For Sale In Heliopolis Building House Sale

The Pearl Project Of Azizi Is A Two Storey Tower Consists Of A Parking Lot And A Ground Floor With Shops And 7 Residential Apartments Ground Floor Golf Estate

The Pearl Project Of Azizi Is A Two Storey Tower Consists Of A Parking Lot And A Ground Floor With Shops And 7 Residential Apartments Ground Floor Golf Estate

Gallery Of Cedar Ing Offices Benthem Crouwel Architects Hofmandujardin 7 In 2020 Building Concept Architect Building

Gallery Of Cedar Ing Offices Benthem Crouwel Architects Hofmandujardin 7 In 2020 Building Concept Architect Building

Source : pinterest.com